Mieterservice

Lebensqualität am Rhein - Eigentumswohnungen in Dachsen

Die im Jahre 2007 fertiggestellten 2.5- bis 5.5-Zimmer-Wohnungen bestechen durch grosszügige Grundrisse, attraktive Aussenbereiche und einen zeitlosen Innenausbau. Hochwertige Parkett- und Plattenböden sowie ein Waschmaschinen-/Tumbler-Anschluss sind in jeder Wohnung vorhanden. Eine Tiefgarage mit Einstellplätzen, eigene Kellerabteile und Veloräume runden das Angebot ab.

Dank der attraktiven Anbindung an den öffentlichen Verkehr und die Autobahn sind sowohl Schaffhausen als auch Winterthur in kürzester Zeit erreichbar. Die Lage der Wohnungen zeichnet sich ausserdem durch die unmittelbare Nähe zu Naherholungsgebieten und vielfältigen Freizeitangeboten aus.

Dachsen liegt idyllisch am Rhein, in der Nähe des bekannten Rheinfalls. Das Dorf ist geprägt von einer ruhigen, ländlichen Atmosphäre und bietet eine schöne Umgebung für Wanderungen und Erholung. Trotz seiner beschaulichen Grösse hat Dachsen eine bedeutsame Geschichte und ist gut mit den umliegenden Städten verbunden, sodass es sowohl bei Einheimischen als auch bei Besuchern beliebt ist. Durch seine Lage in der Nähe des Rheins und die Nähe zum Naturschutzgebiet bietet Dachsen eine besondere Lebensqualität im Grünen.

Erhalten Sie einen Einblick der Wohnungen – bequem von zu Hause aus! Über folgenden Link gelangen Sie zur 360°-Tour: https://my.matterport.com/show/?m=B2GjY1isPLx

Wohnung / Objekt
Nr.
Wohnfläche m2
Balkon-/ Gartenfläche m2
Verkaufspreis
Grundriss
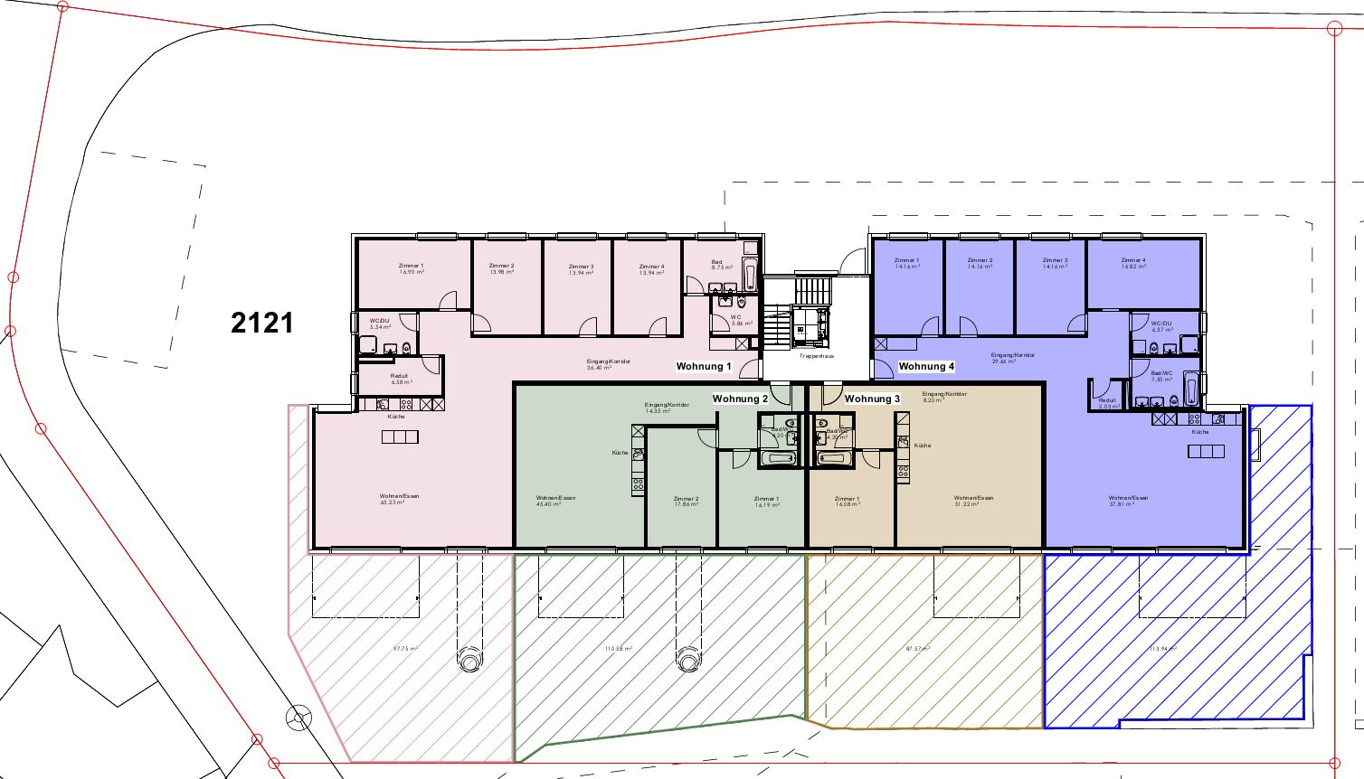
Rheinfallstrasse 1
5.5-Zi.-Wohnung, EG, links
1
186
97
1'020'000.-
3.5-Zi.-Wohnung, EG, mi. links
2
93
110
Verkauft
2.5-Zi.-Wohnung, EG, mi. rechts
3
79
87
Verkauft
5.5-Zi.-Wohnung, EG, rechts
4
163
113
990'000.-
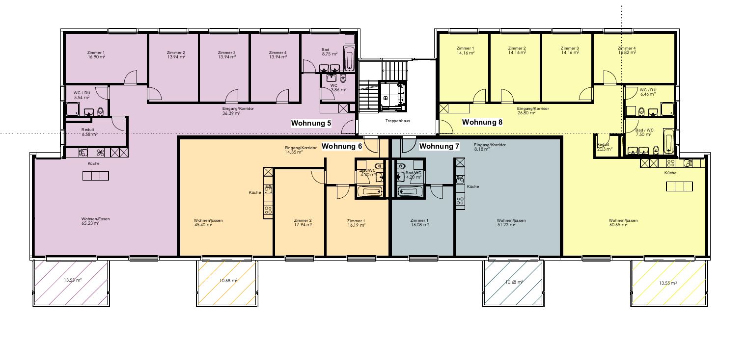
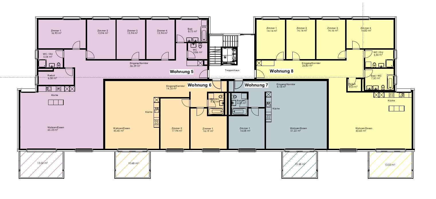
5.5-Zi.-Wohnung, 1. OG, links
5
185
13.5
990'000.-
3.5-Zi.-Wohnung, 1. OG, mi. links
6
98
10.6
Verkauft
2.5-Zi.-Wohnung, 1. OG, mi. rechts
7
79
10.6
Verkauft
5.5-Zi.-Wohnung, 1. OG, rechts
8
163
13.5
960'000.-
5.5-Zi.-Wohnung, Attika, links
9
175
38.8
Verkauft
2.5-Zi.-Wohnung, Attika, mitte
10
69
37.1
Verkauft
5.5-Zi.-Wohnung, Attika, rechts
11
152
38.6
Verkauft
Bastellraum Nr. 1, 1. UG
12
22
Verkauft
Bastellraum Nr. 2, 1. UG
13
22
Verkauft
Rheinfallstrasse 3
5.5-Zi.-Wohnung, EG, links
1
162
141
Verkauft
2.5-Zi.-Wohnung, EG, mitte
2
87
94
Verkauft
4.5-Zi.-Wohnung, EG, rechts
3
141
112
Reserviert
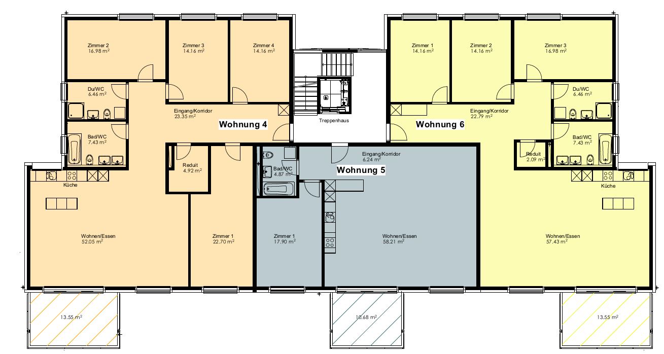
5.5-Zi.-Wohnung, 1. OG, links
4
162
13.5
960'000.-
2.5-Zi.-Wohnung, 1. OG, mitte
5
87
10.6
Verkauft
4.5-Zi.-Wohnung, 1. OG, rechts
6
141
13.5
Verkauft
4.5-Zi.-Wohnung, Attika, links
7
144
45.4
Verkauft
4.5-Zi.-Wohnung, Attika, rechts
8
144
45.4
Verkauft
Rheinfallstrasse 7
5.5-Zi.-Wohnung, EG, links
1
160
143
Verkauft
6.5-Zi.-Wohnung, EG, rechts
2
166
178
Verkauft
5.5-Zi.-Wohnung, 1. OG, links
3
160
13.5
950'000.-
6.5-Zi.-Wohnung, 1. OG, rechts
4
166
13.5
1'000'000.-
4.5-Zi.-Wohnung, Attika, links
5
118
39.9
Verkauft
4.5-Zi.-Wohnung, Attika, rechts
6
118
39.9
Verkauft
Aussenparkplätze
Verkauft
Einstellplätze
37'000

Lassen Sie sich von den lichtdurchfluteten Wohnräumen, durchdachten Grundrissen und einem hochwertigen Innenausbau überzeugen:

  • Grosszügige und helle Wohn-/Essbereiche
  • Hochwertiger Parkettboden
  • Offene Küche mit Geschirrspüler, Backofen und Glaskeramik
  • Waschturm-Anschluss (WM/TU) in der Wohnung
  • Badezimmer mit Dusche und teils mit zusätzlicher Badewanne, Wandbecken und Einbauspiegelschrank
  • Wärmeverteilung über Bodenheizung
  • Garderobe mit Einbauschränken im Eingangsbereich
  • Grosszügige Balkon-/Aussenflächen

IT3 Immobilien + Treuhand AG

„Haus zum Thiergarten“
Schönmaiengässchen 1
8200 Schaffhausen

Tel +41 52 635 10 25
bianca.schadegg@it3.ch
www.it3.ch